Proyectos Destacados
Espacios solo para ti
Vivienda moderna
Diseño y construcción de viviendas inteligentes y eficientes.
Construcción industrial
Proyectos de construcción para comercio e industria innovadores.
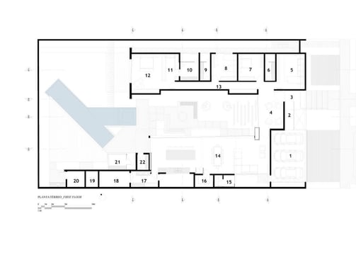
Proyectos
Descubre nuestros proyectos de diseño y construcción integral.
Vivienda ecológica
Construcción sostenible con sistemas inteligentes y eficientes.
Espacio comercial
Diseño de espacios comerciales adaptados a tus necesidades.
Vivienda familiar
Diseño y construcción de viviendas familiares personalizadas y funcionales.
Proyecto industrial
Construcción de proyectos industriales con tecnología avanzada y eficiente.


